Show previous image
Show next image

South Lodge: Sleeps 6

Our new traditional redwood Classic lodges have comfortable interiors; the generous open-plan living space is furnished to a high with uninterrupted sea and countryside views.
  • Sleeps 6
  • 3 bedroom
  • 2 bathroom
  • Wi-Fi
  • Sea and countryside 
  • Pets welcome - max 2 per property
  • No smoking
  • Parking for 2 cars adjacent to the propert

Garden

  • Large private decking area and grassed area with garden furniture

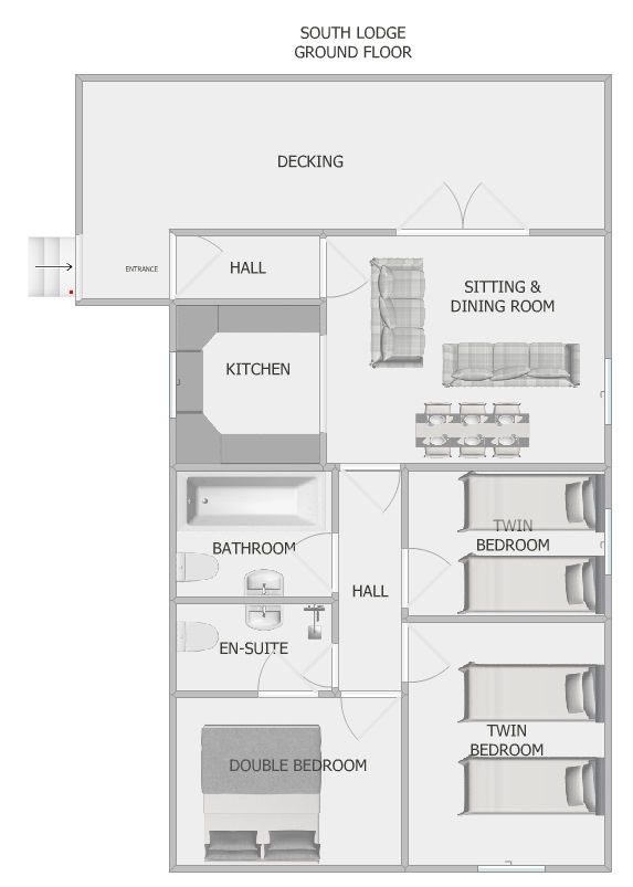
Ground Floor

  • Entrance hall
  • Open plan sitting room / kitchen / dining room - fully equipped with fridge freezer, hob, oven and grill, microwave, dishwasher, utensils, crockery, cutlery, cooking knives, pots and pans, tea towels and cleaning cloth. A small amount of cleaning  materials, washing up liquid and dishwasher tablets are provided 
  • Family bathroom with overhead shower
  • Double bedroom with ensuite shower room
  • Two twin bedrooms

Check In Dates

  • Minimum stay 2+ nights with any arrival day
  • £100 non refundable deposit is taken at the time of booking. The remaining balance is payable 6 weeks prior to your stay. If your stay is within 6 week the full amount is due at the time of booking

 

South Lodge Availability

South Lodge availability for
SunMonTueWedThuFriSat
26272829303101
02030405060708
09101112131415
16171819202122
23242526272829
30010203040506
Key
Available - click to book on this date
Telephone booking only 01665 721820
Fully booked

South Lodge Photos

South Lodge
South Lodge
South Lodge
South Lodge
South Lodge at Springhill Farm
South Lodge at Springhill Farm
South Lodge at Springhill Farm
South Lodge at Springhill Farm
South Lodge at Springhill Farm
South Lodge at Springhill Farm
South Lodge at Springhill Farm
South Lodge at Springhill Farm
Floorplan
© 2025 J Gregory & Sons Springhill Accommodation
 
J Gregory & Sons Springhill Accommodation

Seahouses, Northumberland NE68 7UR
Telephone: 44 (0)1665 721820 Email: enquiries@springhill-farm.co.uk  

what3words: ///reaction.clocking.collision

Privacy Policy   

CCTV in operation on site 24 hours

This site uses cookies. By browsing the site you are agreeing to our use of cookies. Find out more here  •  Site by Angelfish

Follow us on Facebook   Follow us on Instagram